SYMAP® Series

SYMAP® series offer the following versions:

SYMAP®Y

(EC, ECG, F, G, M, T, LD, DC, BAT)

Relays with power management and diesel automation:
• EC engine control*
• ECG engine control & generator protection*
• F feeder protection*
• G generator protection*
• M motor protection*
• T transformer protection*
• LD line differential protection*
• DC DC protection*
• BAT battery applications (hybrid energy sources)

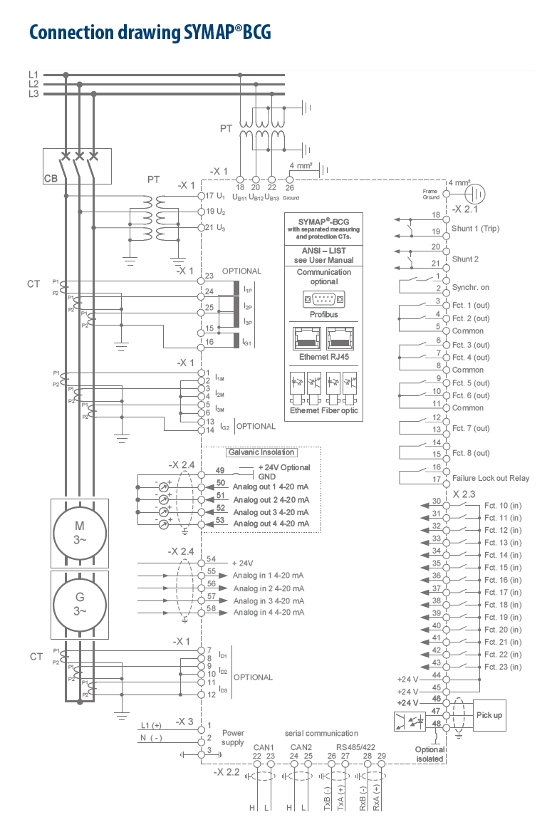
SYMAP®BC

(BC, BCG)

Relays with power management, diesel automation and differential
protection:
• BC multifunctional protection relay*
• BCG multifunctional protection relay,
   power management*

 

 

*see hardware and software capabilities

Call Us